home
architecture
design
photos
contact
Andrew Andrew
home
architecture
design
photos
contact

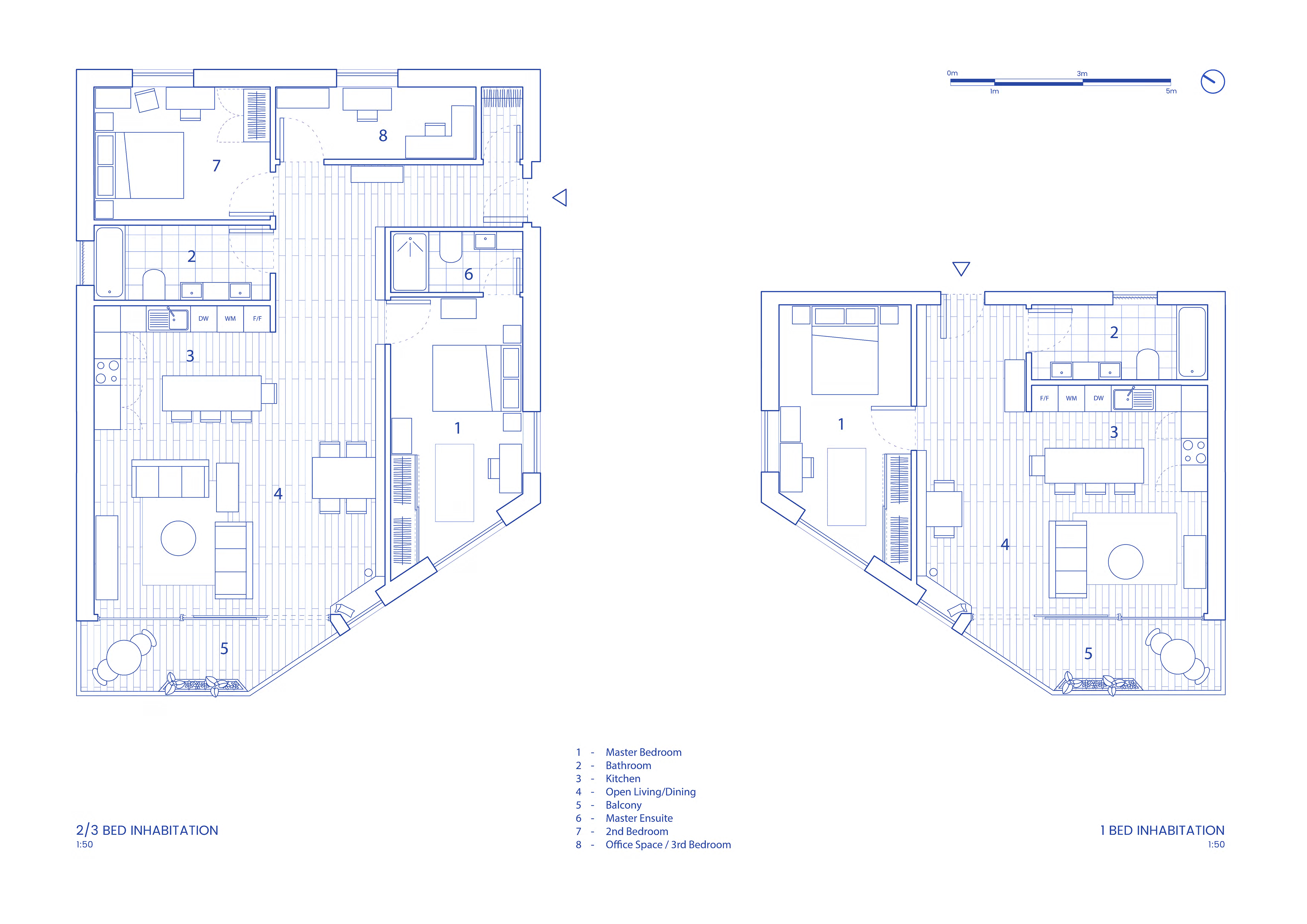
Live/Work Housing in Shieldfield